Últimos Proyectos

Horizontes 425



En este proyecto se buscó organizar los distintos ambientes individualmente y de manera aleatoria. La implantación de la casa que se desarrolla toda en planta baja, podría seguir indefinidamente con este juego de volúmenes, dejando la separación entre estos para el acceso y las circulaciones. Además, Destacándose el volúmen principal de estar comedor con doble altura.


La unidad se logra con la elección de 3 materiales como el blanco de los muros, el mismo solado en todos los ambientes y la madera en el mobiliario. Resaltando así el verde que rodea la casa y las plantas interiores. Las ventanas, siguiendo la misma lógica, se disponen de una aparente aleatoriedad pero a la vez estratégicamente ubicadas para favorecer las visuales, luminosidad y ventilación cruzada. Generando así, un interior con luces y sombras, que ingresan de manera más natural borrando los límites entre el interior y el exterior.


De esta manera, se rompe con un racionalismo rígido de las viviendas vecinas. Los volúmenes no dan cuenta que función encierran, ni las ventanas que ambientes dividen, o si hay uno o dos pisos. Buscando la simplicidad donde menos es más, pero sin que sea aburrido. Logrando así que sea una vivienda igual pero distinta a todas.

    img-1 img-6 img-7 img-2 img-3 img-4 img-5

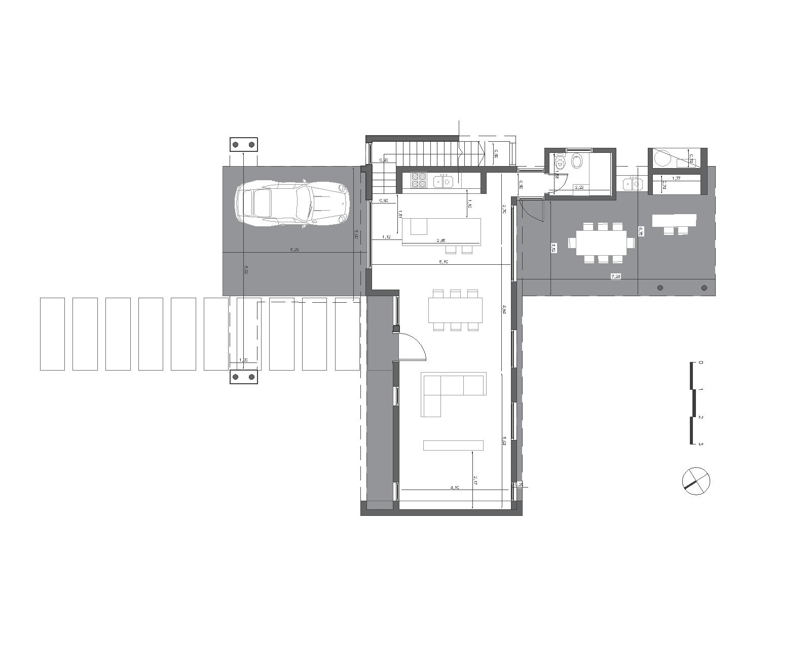
Naranjos 34



Se buscó cuidar el frente de un modo más introspectivo, a través de un muro de piedra que forma un patio interno y a la vez jerarquiza el acceso principal.


Se logra una síntesis con líneas simples que se ve reforzada por una viga que cose todo el perímetro de la vivienda.


Abriendo las mejores visuales para el jardín al contrafrente, que se orienta hacia al norte, dejando entrar la mayor luminosidad hacia las zonas semipúblicas de estar, cocina y comedor.

    img-1 img-2 img-3 img-4 img-5 img-6 img-7 img-8 img-9 img-10

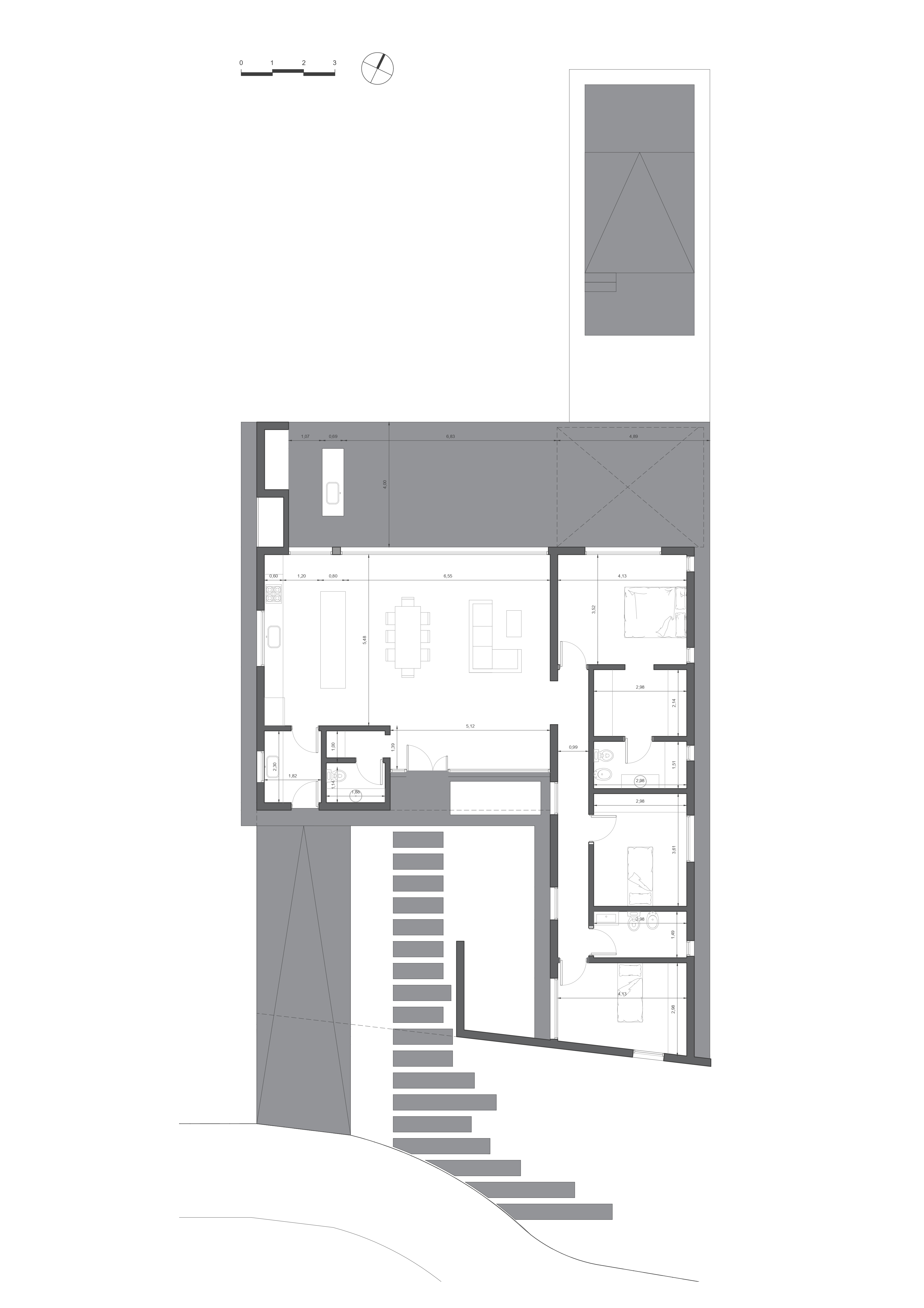
El Rebenque 18



En este proyecto de dos plantas se buscó generar un concepto contundente con un juego de dos vólumens, uno semipúblico que contiene a la cocina, estar, comedor y otro más privado que lo cruza por arriba que contiene los dormitorios.


Logrando así una morfología original de síntesis y líneas simples que contiene estos usos y sectoriza otros. Como el acceso que es reforzada por el pórtico que sostiene el volumen superior donde genera un semicubierto para los autos. O el contrafrente que el voladizo genera el espacio para el quincho. De esta manera la implantación de la casa logra las mejores visuales hacia el jardín

    img-1 img-2 img-3 img-4 img-5 img-6 img-7 img-8 img-9 img-10

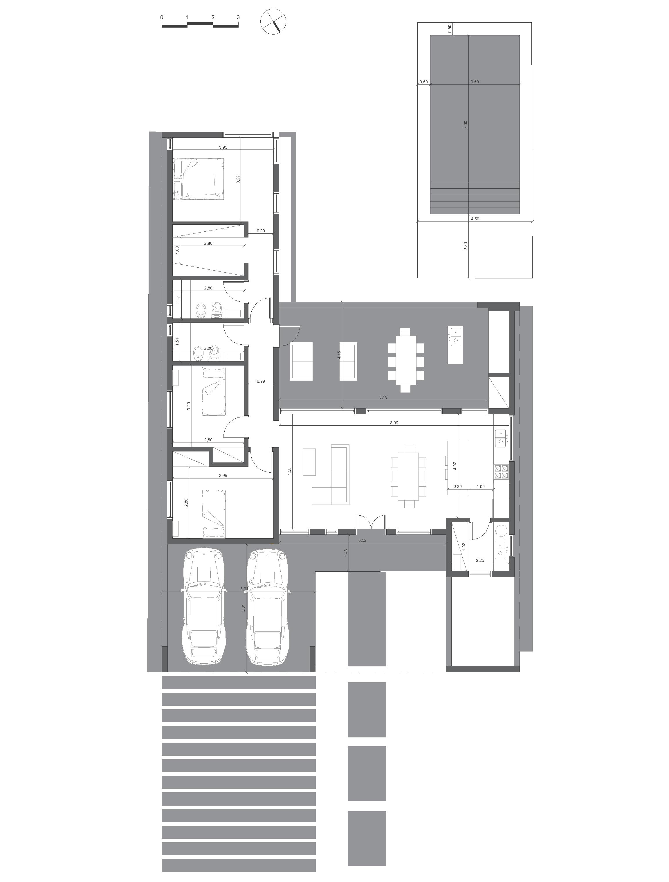
El Principado 04 03



En esta vivienda se buscó integrar todo el programa en planta baja, distribuyendo la zona semipública a continuación con el semicubierto y del otro lado la zona privada de los dormitorios.


Esta distribución en L logra captar las mejores visuales al contrafrente rematando con la pileta. Generando un área continua que es cocida con una viga que le da unidad a toda la casa, cerrándose y abriéndose con vanos para conservar la intimidad o ganar mejores visuales, favoreciendo la ventilación cruzada.


El acceso se ve reforzado por esta viga que hace de pórtico para entrar a un espacio integrado de cocina, estar, comedor. Con ventanas de piso a techo que generan una mayor continuidad con el exterior, siendo la losa la que cubre toda el área interior de la vivienda.

    img-1 img-2 img-3 img-4 img-6 img-7 img-8

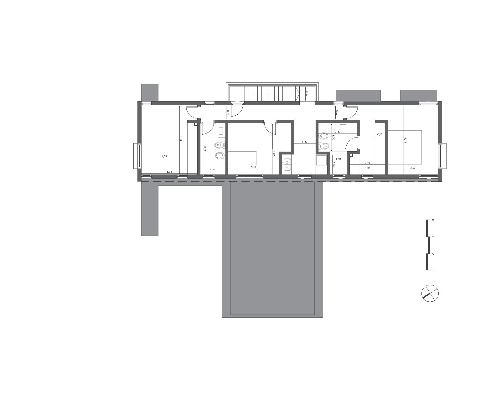
El Rebenque 335



La vivienda se destaca por la forma en que su volumetría superior de funciones más privadas se despega de la planta baja más pública.


El volumen de la casa se encuentra atravesado por el núcleo de escaleras de piso a techo y el de la cocina que se superpone en planta baja. Dejando una planta más libre donde se encuentra el comedor y a continuación el semicubierto también en doble altura. Lo que permite una sensación de amplitud y luminosidad en todo el espacio, confundiéndo el exterior con el interior.

    img-1 img-2 img-3 img-4 img-6 img-5